Прескочи към съдържанието
Продажба Апартамент

Продава тристаен апартамент , Русе, Родина 2

Русе, Родина 2

135 000 €
1 517 €/м²
89
м²
5 от 15
етаж
ЕПК
строителство

Пазарна оценка

В нормата (0%)
Средна за Родина 2: 1 517 €/м² (1 обяви)

Описание

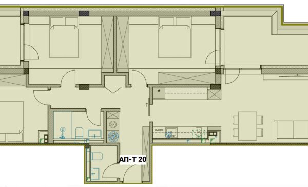
ЕРА Недвижими имоти офис Лидер предлага за продажба тристаен апартамент, разположен на 5-ти етаж в жилищна сграда тип ЕПК – строителство, известно със своята стабилност, просторни помещения и функционални разпределения.

Жилището предлага удобно и добре организирано вътрешно пространство, подходящо за комфортно семейно обитаване.

Разпределението включва:
– просторен и светъл хол, подходящ за зона за почивка и прием на гости
– самостоятелна кухня, позволяваща удобно обособяване на кухненска и трапезарна част
– две самостоятелни спални
– голям функционален коридор, който осигурява достъп до всички помещения и позволява допълнително място за съхранение
– баня и санитарен възел – отделни
– килер, удобен за съхранение на домакински вещи
– три тераси, които осигуряват повече светлина и допълнително пространство към жилището

В апартамента е поставена нова ПВЦ дограма, както и нови интериорни врати, които допринасят за по-добър комфорт и обновена визия на помещенията.

Жилището се продава с цялото налично обзавеждане и оборудване, което позволява бързо нанасяне без необходимост от сериозни допълнителни инвестиции.

Локацията е изключително удобна – в близост се намират детска градина, училище, хранителни магазини, хипермаркети, аптеки, заведения и спирки на градски транспорт, което прави ежедневието лесно и комфортно. Районът е добре устроен и предпочитан за семейно живеене.

Имотът е подходящ както за семеен дом, така и като инвестиция, благодарение на практичното си разпределение и удобната градска среда.

Заповядайте да Ви го покажем! Използвайки услугите на агенция за недвижими имоти ЕРА Лидер Вие ще превърнете закупуването на новия си дом в едно приятно изживяване, като получите персонален консултант, който ще се запознае от близо с Вашите изисквания. Възползвайте се от безплатна консултация в нашия офис, където ще ви спестим време , средства и ще Ви запознаем с всички актуални имоти в гр. Русе, отговарящи на Вашето търсене.
Всеки имот предлаган от ЕРА е проверен, посетен на място и заснет от наш консултант.
ЕРА е лицензиран КРЕДИТЕН ПОСРЕДНИК и предлага БЕЗПЛАТНА консултация на своите клиенти!
ЕРА Е РЕГИСТРИРАН КЪМ БНБ КРЕДИТЕН ПОСРЕДНИК И КАТО ТАКЪВ ОФИЦИАЛНО ПРЕДОСТАВЯ ВСИЧКИ ВИДОВЕ КРЕДИТИ КЪМ ВСИЧКИ БАНКИ БЕЗПЛАТНО!!!
Всеки имот предлаган от ЕРА е проверен, посетен на място и заснет от наш консултант

ОБАДЕТЕ СЕ ОЩЕ СЕГА ЗА ОГЛЕД: 0877 688 666

Оферта №6700389

Характеристики

Тип имот Апартамент
Площ 89 м²
Етаж 5 от 15
Строителство ЕПК
Отопление Електрическо
Асансьор Да

Особености

Ток Водопровод Канализация Склад Асансьор

Локация

Подобни имоти

Виж всички →

Вижте още

Апартаменти за продажба в Русе Имоти за наем в Русе Имоти за нощувки в Русе Имоти за продажба в Родина 2 Къщи за продажба в Русе Студия за продажба в Русе Офиси за продажба в Русе Парцели за продажба в Русе